Progettazione di impianti di condizionamento a Rovereto
Progettiamo e realizziamo canali per ogni occorrenza
L’officina meccanica si occupa della realizzazione concreta delle canalizzazioni, pezzi speciali e dei vari accessori connessi grazie all’ottimizzazione dei pezzi tramite software e grazie ad una squadra composta da operai specializzati nella produzione e dell’assemblaggio dei canali metallici e dei vari accessori.
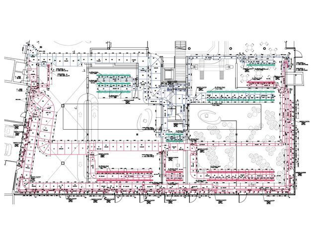
L’ufficio tecnico, invece, è predisposto al rilievo misure in cantiere (questo solo nel caso in cui il cliente necessiti del servizio) e della stesura dei disegni esecutivi tramite programmi informatici
Rilievo misure in cantiere
Progettazione e disegni esecutivi
Costruzione su misura
Rivestimento isolante dei canali
Consegna in tempi brevi
Vendita accessori
Impiantistica d'aria
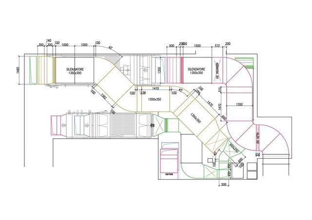
Per quanto riguarda l’impiantistica d’aria, la nostra ditta si occupa della costruzione di canali in lamiera per la realizzazione d’impianti di condizionamento e aspirazione fumi. Le bocchette per la diffusione dell’aria sono completamente personalizzabili. Quando richiesto, i canali vengono isolati esternamente, a seconda dell'esigenza di cantiere, con vari tipi di isolante. Solitamente, si utilizzano materiali quali la lana di vetro, il polietilene o l’elastomero di varie qualità e spessore.
Canalizzazioni su misura
I progetti e la creazione delle canalizzazioni possono essere realizzate a sezione rettangolare oppure circolare. I materiali utilizzati sono diversi in base all’esigenza del cliente, dell’ambiente e dello scopo. Solitamente vengono costruiti in lamiera zincata, in acciaio inox, rame, alluminio, o possono essere verniciati a forno nella tinta RAL, sempre su richiesta del cliente.
In base alle specifiche necessità, possono essere forniti canali spiroidali, canali in pannelli preisolati e canne fumarie singole o a doppia parete.
CONTATTACI ORA
Contattaci telefonicamente per scoprire di più sulla nostra offerta di impianti termoidraulici e di condizionamento



















